DG Real Estate
Call Us: 08 8231 3689
Based in Adelaide,
DG is a multicultural real estate agency established in 2009.
image image image image image image image image image image image image image image image image image

550 Goodwood Road, Daw Park

1.9 millions
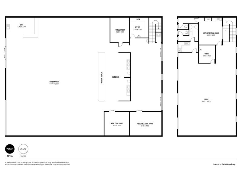
  • Property type: Retail
  • Floor Area: 755 sq metres
  • Land size: 585 sq metres
  • Listing type: For Sale

High Exposure Renovated Retail Shop for Sale and Lease

Located on the highly exposed Goodwood Road with approximately 25,000 cars passing daily, this retail shop is within a growing neighbourhood now available for sale and lease.

Previously an IGA Foodland Supermarket with a large open retail space and upstairs area, this multipurpose property has just been renovated in 2018 as a supermarket with new fridge, cool room, freezer room, and will also make a great retail store or a funky space for your business. Re-division is possible if needed.
Property Details:
- Previously an IGA Foodland Supermarket
- Land Size- 585.35 m2 approx. (under 3 titles) with 21.34 m frontage
- Total lettable area 700 m2 approx. with 500.58 m2 (Ground Floor) and 199.82 m2 (Upper Level)
- Zoning: Neighbourhood Centre, and Land use: Supermarkets
- All Equipment are included (Shop Equipment List will be provided)
- 2 Brand new Cool room and 1 Freezer room installed with 2 years Parts and Labour Warranty
- Brand new Air Conditioners with 5 years Parts and Labour Warranty installed
- Open Multideck Self Contained Fridge and Commercial Whole in One Fridge are installed
- New Shop alarm System with 8 Smoke Detectors and Security Camera System are installed

Contact Richard Chiu on 0433 519 023 and Simon Hou 0423 807 866 for further information or to view.

Location

Great Agent - Aditya

Thanks, Aditya for making the sale of our first home a success.

I would like to commend the exceptional, professional services delivered by Aditya Singh of DG Real estate. This was the first time I was selling a property. I was a bit concern about the selling process, however, all the process went smoothly with Aditya's coordinated planning. Aditya was the perfect choice of agent__honest, committed and always available. He did an outstanding job throughout the process. His Knowledge of property value, home staging, and internet marketing are unsurpassed.

Aman

- Aman
Athelstone

Thank you, Richard

My family and I would like to thank Richard for his excellent professionalism to sell our properties in Adelaide. We had no experience to sell a property before and had no idea what we had to do and how to do, more importantly, we are living in another city, thousands miles away from Adelaide. We must need a trust worthy person to have everything done properly for us. A close friend recommended Richard from DG real estate to us. Richard had sold his home a few months ago with an excellent outcome of price and service. We had a phone talk with Richard. We instantly liked him because of his knowledge and experience in the Adelaide real estate market, and also he understood our difficulties and concerns in our case. The property was finally only on the market for three weeks and sold before auction. Richard also helped us to finalize almost everything for the smooth settlement of the property. It’s our luck to utilise Richard’s service. So we are more than happy to recommend Richard to all of our friends when they sell their properties in Adelaide.

- Bob & Tina
Clapham

Thank you so so much!

Richard negotiated a sale price that exceeded expectations and after only one weekend on the market. Richard worked to accommodate my personal circumstances and when I was unsure about how to proceed, Richard listened to my concerns and was very patient, helpful and kind. I am really happy I sold with Richard Chiu at DG Real Estate.

- Jessica Kinloch
Seaton

Much appreciate for your effort!

It is with pleasure and willingness that I am able to present the following short testimonial.

Joyce Wang, some years ago, sold a house of mine. Doing so, I noticed that Joyce had a stoic ability to address issues and to problem solve whilst resolutely staying professional. It was because of these attributes, that, when later, I required a property manager for a rental property, for peace of mind it was Joyce Wang I turned to.

To this day, I still employ her services. I have not been disappointed. I value her competence, her endeavour and her friendship.

- Cameron G. O’Connor
Morphettville