1/271-281 Gouger Street, Adelaide
$291,200- Property type: Retail
- Floor Area: 528 sq metres
- Car Spaces: 9
- Listing type: Under Contract
Brand New Commercial Shop For Sale, Open to Offer! (Only 2 Shops Available Now!)
DG Real Estate is proudly to present these five individual titled commercial shop on Gouger Street, known as Aria Apartment. Flexible floor area 56 - 528 SQM are now open to offer. This property is located on Gouger Street, one of Adelaide's most progressive Precincts, where most famous cafes and restaurants are located in.
Features include:
• Flexible layouts for multiple options suitable for office / retail / cafe (stcc)
• Stamp Duty Free since July 2018
• Quality base fit-out with full height commercial glazed shopfronts (some with bi-fold doors)
• Reverse cycle air conditioning
• Commercial trade waste arrestor (Essential for a Cafe or a Restaurant)
• Access to male, female and disability toilet on site (some with direct access)
• Provide rear access and extra storage area (approx. 5 SQM)
• On site car parks available for purchasing
• Post Office across the road and 90 apartments on top offers good customer base for business
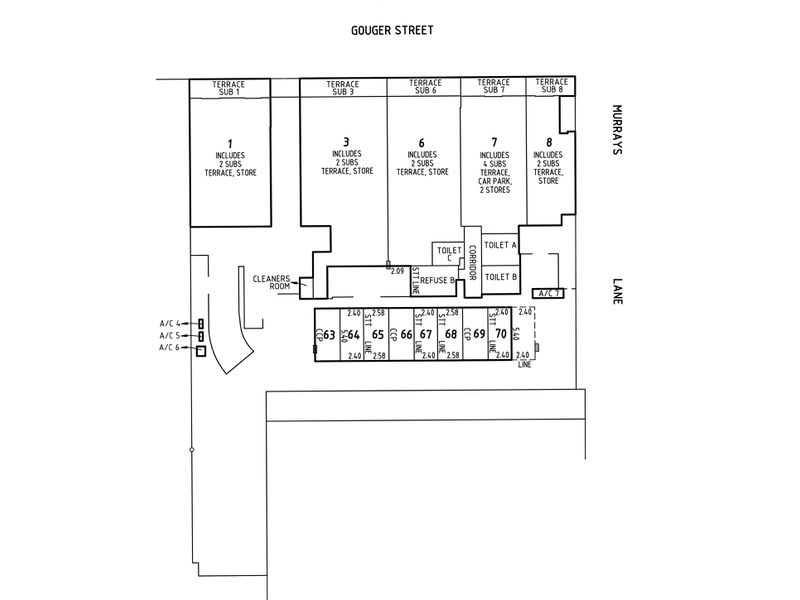
Lot details:
Lot 1 : 106.5 sqm internal area + 14 sqm terrace area (approx.) - Under Contract
Lot 3 : 150 sqm lettable area + 15 sqm terrace area (approx.)
Lot 6 : 123 sqm lettable area + 12 sqm terrace area (approx.) - Under Contract
Lot 7 : 92.5 sqm lettable area + 12 sqm terrace area (approx.)
Lot 8 : 56 sqm lettable area + 11 sqm terrace area (approx.) - Under Contract
Total: 528 sqm internal area + 64 sqm terrace area (approx.)
RLA 217 293
