DG Real Estate
Call Us: 08 8231 3689
Based in Adelaide,
DG is a multicultural real estate agency established in 2009.
image image image image image image image

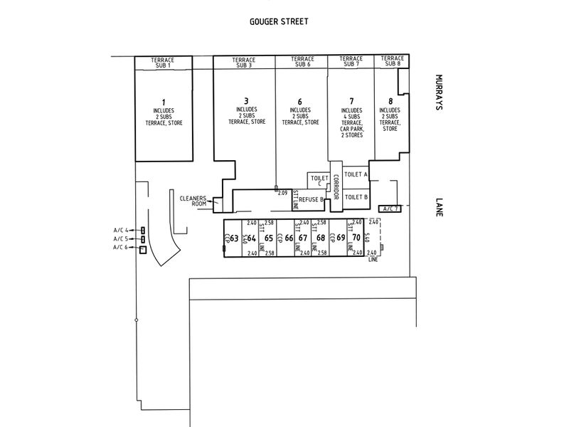
271-281 Gouger Street, Adelaide

Mortgage Sales (Only 2 Available Now)
  • Property type: Retail
  • Floor Area: 528 sq metres
  • Car Spaces: 9
  • Listing type: For Sale

Brand New Commercial Shop For Sale, Open to Offer! (Only 2 Shops Available Now!)

DG Real Estate is proudly to present these five individual titled commercial shop on Gouger Street, known as Aria Apartment. Flexible floor area 56 - 528 SQM are now open to offer. This property is located on Gouger Street, one of Adelaide's most progressive Precincts, where most famous cafes and restaurants are located in.

Features include:
• Flexible layouts for multiple options suitable for office / retail / cafe (stcc)
• Stamp Duty Free since July 2018
• Quality base fit-out with full height commercial glazed shopfronts (some with bi-fold doors)
• Reverse cycle air conditioning
• Commercial trade waste arrestor (Essential for a Cafe or a Restaurant)
• Access to male, female and disability toilet on site (some with direct access)
• Provide rear access and extra storage area (approx. 5 SQM)
• On site car parks available for purchasing
• Post Office across the road and 90 apartments on top offers good customer base for business

Lot details:
Lot 1 : 106.5 sqm internal area + 14 sqm terrace area (approx.) - Under Contract
Lot 3 : 150 sqm lettable area + 15 sqm terrace area (approx.)
Lot 6 : 123 sqm lettable area + 12 sqm terrace area (approx.) - Under Contract
Lot 7 : 92.5 sqm lettable area + 12 sqm terrace area (approx.)
Lot 8 : 56 sqm lettable area + 11 sqm terrace area (approx.) - Under Contract

Total: 528 sqm internal area + 64 sqm terrace area (approx.)

RLA 217 293

Location

Great Agent - Aditya

Thanks, Aditya for making the sale of our first home a success.

I would like to commend the exceptional, professional services delivered by Aditya Singh of DG Real estate. This was the first time I was selling a property. I was a bit concern about the selling process, however, all the process went smoothly with Aditya's coordinated planning. Aditya was the perfect choice of agent__honest, committed and always available. He did an outstanding job throughout the process. His Knowledge of property value, home staging, and internet marketing are unsurpassed.

Aman

- Aman
Athelstone

Thank you, Richard

My family and I would like to thank Richard for his excellent professionalism to sell our properties in Adelaide. We had no experience to sell a property before and had no idea what we had to do and how to do, more importantly, we are living in another city, thousands miles away from Adelaide. We must need a trust worthy person to have everything done properly for us. A close friend recommended Richard from DG real estate to us. Richard had sold his home a few months ago with an excellent outcome of price and service. We had a phone talk with Richard. We instantly liked him because of his knowledge and experience in the Adelaide real estate market, and also he understood our difficulties and concerns in our case. The property was finally only on the market for three weeks and sold before auction. Richard also helped us to finalize almost everything for the smooth settlement of the property. It’s our luck to utilise Richard’s service. So we are more than happy to recommend Richard to all of our friends when they sell their properties in Adelaide.

- Bob & Tina
Clapham

Thank you so so much!

Richard negotiated a sale price that exceeded expectations and after only one weekend on the market. Richard worked to accommodate my personal circumstances and when I was unsure about how to proceed, Richard listened to my concerns and was very patient, helpful and kind. I am really happy I sold with Richard Chiu at DG Real Estate.

- Jessica Kinloch
Seaton

Much appreciate for your effort!

It is with pleasure and willingness that I am able to present the following short testimonial.

Joyce Wang, some years ago, sold a house of mine. Doing so, I noticed that Joyce had a stoic ability to address issues and to problem solve whilst resolutely staying professional. It was because of these attributes, that, when later, I required a property manager for a rental property, for peace of mind it was Joyce Wang I turned to.

To this day, I still employ her services. I have not been disappointed. I value her competence, her endeavour and her friendship.

- Cameron G. O’Connor
Morphettville